The Roybal Corporation is working together with URS on the RTD North Metro Corridor. We have prepared site maps of several of the potential station areas showing existing conditions.

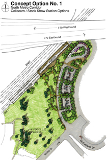
Additionally, the preferred track routing was changed late in the MEIS process, which required a revision of some station locations. We prepared several options for a possible station location near I-70 and Brighton Boulevard. That is the area with the National Western Stock Show complex and Denver Coliseum. We prepared six options. Three of the options have been recommended in the MEIS phase for further study.